96 Center/40 Pine St.

This house contains (2) four bedroom apartments.
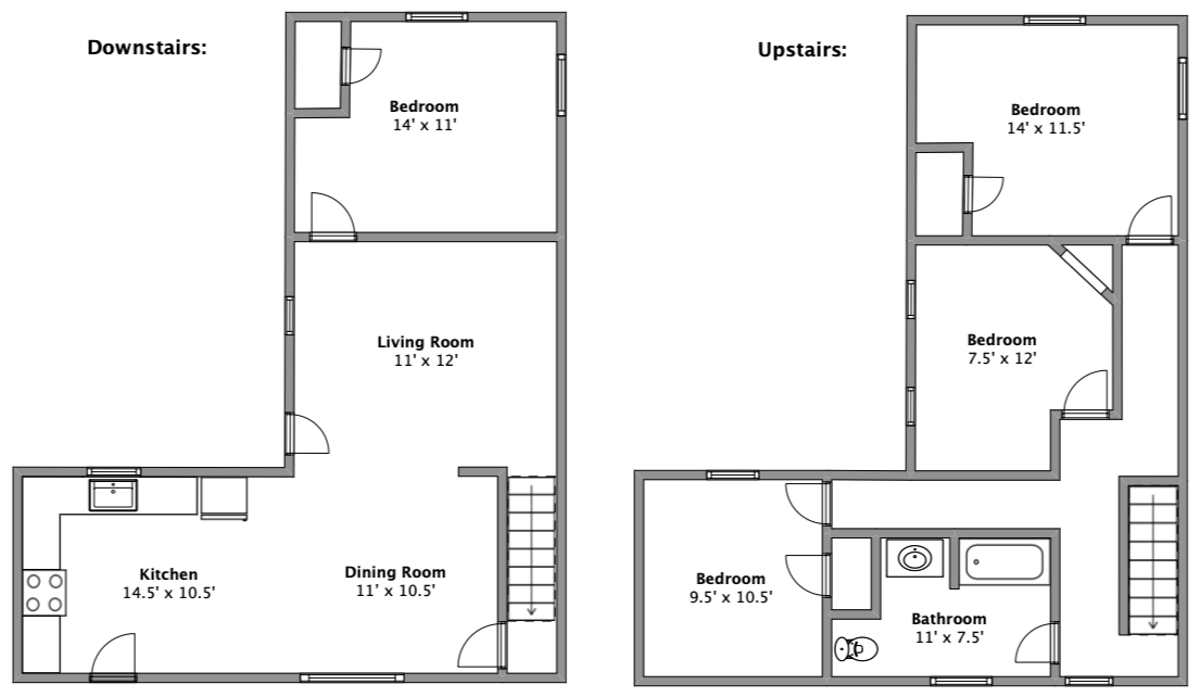
96 Center St. - Newly remodeled four bedroom apartment. Features a living room, dining room, and kitchen with an open layout. Hardwood floors. Kitchen has stainless steel appliances and granite countertops. Large bedrooms with closets. So spacious It feels like an entire house! A block from the Center St. Deli and Bus Stop, this house is incredibly convenient! Laundry in basement. Off street parking is available a block away in the Rental One parking lot on Maple St.
40 Pine St. - Newly remodeled four bedroom apartment. Features a living room, dining room, and kitchen with an open layout. Hardwood floors. Kitchen has stainless steel appliances and granite countertops. Large bedrooms with closets. So spacious It feels like an entire house! A block from the Center St. Deli and Bus Stop, this house is incredibly convenient! Great location, great apartment. Don't hesitate on this one! Off street parking is available a block away in the Rental One parking lot on Maple St.











